Logo Guaranty Soluzioni Immobiliari
Logo Guaranty Soluzioni Immobiliari

MOLFETTA, Via Giovinazzo

ID: 1156 | 109 Mq | 4 Vani | Piano: 5 | Ottimo stato | Ascensore | In Vendita: 380.000,00

Nella zona Levante della città di Molfetta (BA), a breve distanza dal mare, si propone in vendita un appartamento di nuova costruzione, progettato e realizzato in conformità al protocollo ITACA.

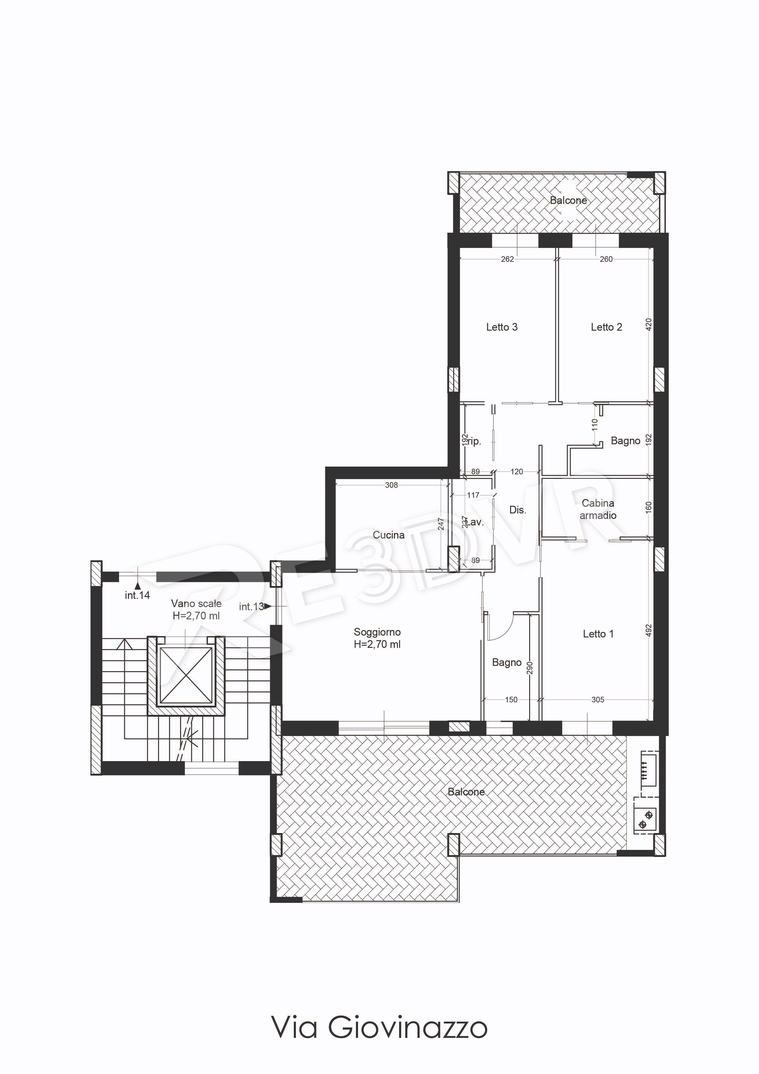
L’appartamento dispone di due affacci esterni, di cui uno con vista mare, che garantiscono una buona luminosità naturale in tutti gli ambienti. Su uno degli affacci il balcone può essere parzialmente trasformato in veranda mediante l’installazione di vetrate panoramiche amovibili, consentendo un’estensione dello spazio di utilizzo senza incremento di volumetria.

La zona giorno è configurata come un ambiente open space destinato ad accogliere cucina e soggiorno, con la possibilità di inserire una vetrata interna quale elemento di separazione tra i due ambienti. Un disimpegno, dotato di armadio a muro, introduce alla zona notte, composta da due camere da letto singole, due bagni, un vano lavanderia e una camera matrimoniale dotata di cabina armadio.

In relazione alla fase di avanzamento dell’edificio, è prevista la valutazione di una diversa distribuzione interna degli ambienti, al fine di adeguare l’organizzazione degli spazi alle esigenze funzionali e alle preferenze dell’acquirente.

L’intervento prevede la possibilità di personalizzare le finiture interne, consentendo all’acquirente di scegliere materiali e soluzioni in linea con le proprie esigenze estetiche e funzionali. La selezione riguarda pavimentazioni, rivestimenti, sanitari e porte interne.

L’appartamento è dotato di impianti progettati per garantire elevati livelli di efficienza energetica e comfort abitativo. La presenza dell’impianto fotovoltaico, del sistema di riscaldamento e raffrescamento a pavimento alimentato da pompa di calore, dell’impianto di deumidificazione canalizzato e del sistema centralizzato di ventilazione meccanica controllata assicura una gestione ottimale dei consumi energetici, una corretta qualità dell’aria interna e condizioni di benessere costanti durante tutto l’anno.

Al fine di consentire l’utilizzo dell’impianto a pavimento anche in modalità di raffrescamento, è prevista la predisposizione di un impianto di deumidificazione canalizzato. Restano a carico dell’acquirente esclusivamente i costi relativi alla fornitura e all’installazione dell’unità di deumidificazione.

L’edificio è progettato e realizzato in conformità al protocollo ITACA, adottando soluzioni costruttive e impiantistiche orientate alla riduzione dei consumi energetici e al rispetto dei criteri di sostenibilità ambientale.

Completa la proprietà un box auto, collegato ai piani residenziali tramite ascensore.

CONSEGNA PREVISTA ENTRO FINE 2027

 

 

Dettagli immobile

 

Dati generali
Categoria
Abitazione
Tipologia
In condominio
Superficie Commerciale
109
Metri Quadri Coperti
0
Piano
5
Ascensore
SI
Vani
4
Stato immobile
Condizioni interne
Ottimo stato

 

Impianti

 

Descrizione interna

 

 

Planimetrie

 

 

 

 

 

RICHIEDI INFORMAZIONI

 

Sei interessato a visionare questo immobile, o desideri semplicemente ricevere maggiori informazioni? Compila questo form e verrai contattato da un Consulente Immobiliare professionista entro poche ore.

 

 

RICERCA IMMOBILE PER ID

Guaranty Soluzioni Immobiliari

© 2026 Guaranty Soluzioni Immobiliari | di Michela Mezzina | Privacy Policy - Cookie Policy