Logo Guaranty Soluzioni Immobiliari
Logo Guaranty Soluzioni Immobiliari

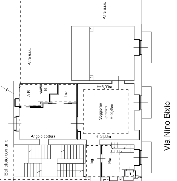
MOLFETTA, Via Nino Bixio, 114

ID: 1078 | 100 Mq | 3 Vani | Piano: 1 | Ottimo stato | In Vendita: 185.000,00

In zona ben servita, vendesi appartamento, al primo piano comodo, di circa 100 mq, composto da ingresso, ampio soggiorno, cucina, due camere da letto, lavanderia, due bagni e cantinola. L'immobile è in ottimo stato di manutenzione e presenta un impianto canalizzato di aria calda e fredda, doppio ingresso e inoltre sono presenti due soppalchi ad uso deposito.

 

 

Dettagli immobile

 

Dati generali
Categoria
Abitazione
Tipologia
In condominio
Superficie Commerciale
100
Metri Quadri Coperti
0
Piano
1
Vani
3
Balconi
2 - Mq 0
Stato immobile
Condizioni interne
Ottimo stato

 

Impianti
Riscaldamento
Autonomo
Climatizzazione
SI

 

Descrizione interna
Cucina
Abitabile
Numero Soggiorni
1
Numero Camere da Letto
1
Numero Bagni
1

 

 

Gallery

 

 

 

Planimetrie

 

 

 

 

 

RICHIEDI INFORMAZIONI

 

Sei interessato a visionare questo immobile, o desideri semplicemente ricevere maggiori informazioni? Compila questo form e verrai contattato da un Consulente Immobiliare professionista entro poche ore.

 

 

RICERCA IMMOBILE PER ID

Guaranty Soluzioni Immobiliari

© 2026 Guaranty Soluzioni Immobiliari | di Michela Mezzina | Privacy Policy - Cookie Policy